最佳回答
本文由作者推荐
简要回答
暑假,是很多小伙伴选择学习驾驶的时间,那么今天小编就给大家来说一说科目二侧方位停车的小技巧,希望大家都可以通过科目二的考试哦!
详细内容
- 01
首先,侧方位停车是科目二必考的内容,我们在考试之前一定要调整好左右后视镜的位置,以达到准确看点的目的。
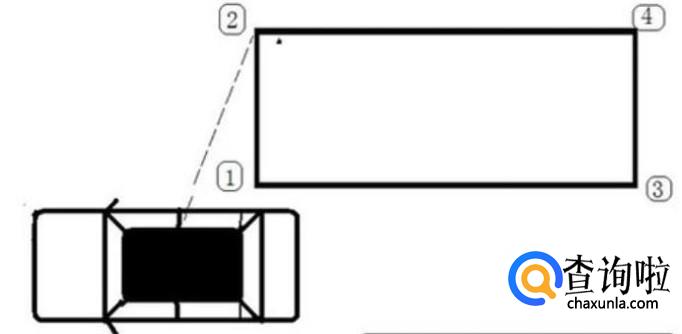
- 02
接着我们在考试的时候,车身需要在车的左侧,而车轮需要沿着右后方的线条缓慢驾驶进入,当车后方三分之一进入后,就可以在50米处停车。
- 03
准备倒车时,开左转向灯,然后开始倒车。从右面车窗中柱看右上方的角,在右上方的角距离中柱5cm时,向右打1圈半(打死),也就容易进入车库。
- 04
当左侧后视镜出现左后角时(即车库的右后角),需要将方向盘向左回轮1.5圈(即回正方向),继续倒车,就可以啦!

广告位
点击排行
- 2 排行
- 3 排行
- 4 排行
- 5 排行
- 6 排行
- 7 排行
- 8 排行
- 9 排行
- 10 排行
热点追踪
广告位

