最佳回答
本文由作者推荐
简要回答
因为工作的缘故,需要各种平面制图,但是又不会运用专业的CAD制图工具等专业画图工具,虽然工作上遇到需要制图,对制图上面的要求不是很高,图片上的长宽度也不要求很精确,那么简单的平面图怎么做呢?
详细内容
- 01
打开画图工具:打开路径为[开始/程序/附件/画图];如果电脑自带画图软件也是可以的。
- 02
进入画图界面,熟悉画图工具版面:整个画图工具可分为三个区域(标题栏、工具栏、颜料板),工具栏中,鼠标点中工具,会显示出相应的功能;
- 03
新建画图,用工具栏矩形工具规划好大致布局;
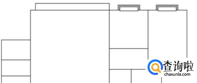
- 04
运用工具栏选区矩形橡皮直线四个工具配合,细化出下图;
- 05
对于看上去比较困难的图,可以结合各种工具画出,如画出下图房门
- 06
利用4图和5图,集合一起,叠成下图(可配合工具栏中选区透明度设置工具)
- 07
利用工具栏中文字工具写好内容,一个简单的平面图就完成了。

特别提示
仅供个人参考,如有不足之处,请多多指教。
广告位
点击排行
- 2 排行
- 3 排行
- 4 排行
- 5 排行
- 6 排行
- 7 排行
- 8 排行
- 9 排行
- 10 排行
热点追踪
广告位

