最佳回答
本文由作者推荐
详细内容
- 01
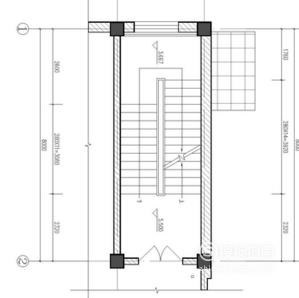
绘制房子平面图一定要先绘制平面定位轴线,轴线画好了才开始绘制平面图,轴线一定要安排好布局,尺寸不能太大也不能太小。
- 02
定位轴线定好之后,就开始画墙体厚度,还有门窗的定位线,墙体厚度要注意外墙基本上都是200毫米,内墙基本上都是100毫米,门窗的定位线轻描一下。
- 03
接下来要把墙体的线条加粗加深,墙体剖断线在平面图里要突出来。
- 04
然后再根据标注的尺寸来画好门和窗,门窗的位置要精准,不要画错位置了。
- 05
画完门窗就画楼梯,楼梯要先画出楼梯的折断线,再画出踏步来,最好是标注出箭头,文字和数据。
- 06
然后将可见的线条都用实现画出来,不可见的线要用虚线表示。
- 07
图纸最后加上标注尺寸,标高,图名和剖切符号等,房子平面图就做好了。

广告位
点击排行
- 2 排行
- 3 排行
- 4 排行
- 5 排行
- 6 排行
- 7 排行
- 8 排行
- 9 排行
- 10 排行
热点追踪
广告位


